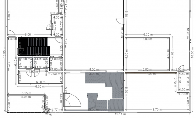
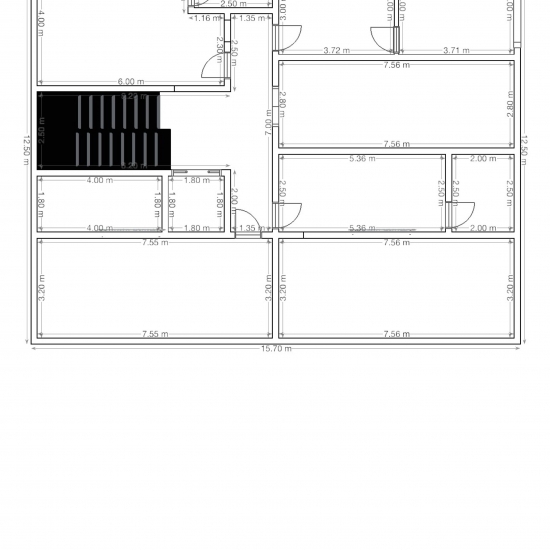
تبديل مكان المعيشه معتمد - Q Copy - Imported



  • Created on :  2/5/26
    Membre depuis :  December 2023
    Projets partagés :  1

Créateur initial :  apple-001675...

Tags
  • Created on :  2/5/26
    Auteur :  apple-001675...
    Membre depuis :  December 2023
    Projets partagés :  1

Créateur initial :  apple-001675...

Tags